1 / 4
Đã thuê
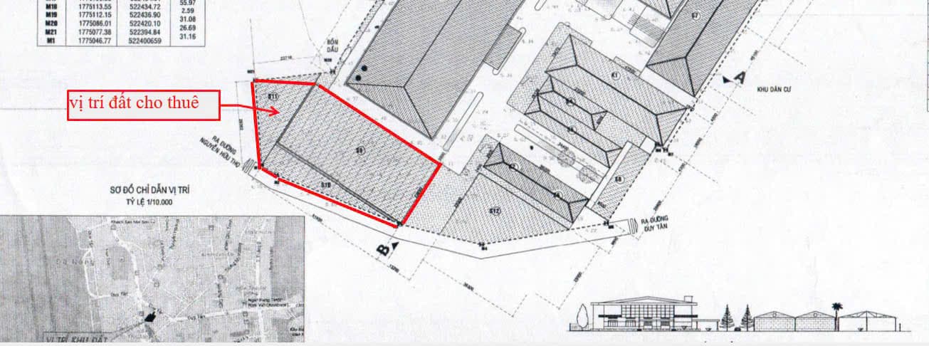
Mặt bằng 2000m2 đường Nguyễn Hữu Thọ
150.0 triệu VNĐ
75.000 VNĐ/m²2000 m²
Nguyễn Hữu Thọ, Hải Châu, Đà Nẵng
Cập nhật 7 tháng trước
Loại hình nhà ở
Đất nền
Diện tích đất
2000 m²
Giá/m²
75.000 VNĐ/m²
Giấy tờ pháp lý
Đã có sổ
Số phòng ngủ
--
Mô tả chi tiết
CHO THUÊ MẶT BẰNG ĐƯỜNG NGUYỄN HỮU THỌ . HẢI CHÂU . VỊ TRÍ SIÊU VÍP
- DIỆN TÍCH . 2000 M2 .
- BỀ NGANG 30 MÉT .
- HỢP ĐỒNG 5 NĂM . TÁI KÍ / LẦN
- GIÁ 150 TRIỆU / THÁNG




